Turkov ORBITA VX 5000 12E
- персональный менеджер решает все вопросы
- грамотные документы
- возмещение НДС 22%
- участвуем в тендерах / торгах
Turkov ORBITA VX 5000 12E - компактная приточно-вытяжная установка с роторным рекуператором и электрическим нагревателем. Она подает свежий воздух, удаляет отработанный и возвращает до 75% тепла, помогая снизить нагрузку на систему отопления.
Что дает эта приточно-вытяжная установка
Модель рассчитана на помещения площадью до 1670 м² и развивает расход воздуха до 5000 м³/ч. При этом установка работает без преднагрева при уличной температуре до -32 °C, а сорбционный ротор сохраняет не только тепло, но и влагу - это важно для комфортного микроклимата в холодный сезон.
Отсутствие конденсата упрощает эксплуатацию: не нужна дренажная система. Для этой модели также предусмотрена поддержка дисбаланса до 30% и режим фрикулинга, когда система использует прохладный наружный воздух без лишнего расхода энергии.
Особенности, которые упрощают монтаж и управление
- Комбинированное моноблочное исполнение с возможностью левого или правого подключения.
- Стальной корпус с теплоизоляцией 50 мм - помогает снизить теплопотери и шум.
- ЕС-вентиляторы и автоматика TURKOV входят в комплект.
- Пульт с сенсорным дисплеем упрощает настройку режимов.
- Есть Wi-Fi-модуль, онлайн-управление и подключение к Яндекс Алисе.
- В комплекте поставляются фильтры тонкой очистки F5 - 4 шт., датчики температуры и влажности, монтажные рельсы, система защиты ротора и термоконтакт.
Где используют ORBITA VX 5000 12E
Установка рассчитана на офисы, кафе, рестораны и производственные помещения, где важны стабильный воздухообмен, рекуперация тепла и возможность интеграции в систему удаленного управления.
По спецзаказу доступны внешний жидкостный нагреватель, блок преднагрева и двойной нагреватель.
| Код товара: | 192826 |
| Серия: | ORBITA VX |
| Модель: | ORBITA VX 5000 12E |
| Альтернативная маркировка: | ORBITA VX 5000 E |
| Бренд: | Turkov |
| Страна бренда: | Россия |
| Страна производства: | Россия |
| Гарантия: | 1 год |
| Рекомендуем для: | для офиса / для производственных помещений |
| Особенность: | роторный рекуператор |
| Тип вентиляционной установки: | компактная приточно-вытяжная |
| Тип нагревателя: | электрический |
| Основное назначение: | офисы, кафе или рестораны, производства |
| Площадь: | 1670 м2 |
| Минимальный уровень шума: | 48 дБ |
| Максимальный уровень шума: | 67 дБ |
| Воздухообмен (максимальный): | 5000 м3/ч |
| Воздуховод: | прямоугольный |
| Wi-Fi / онлайн управление: | Есть |
| Голосовое управление: | Яндекс Алиса |
| Электропитание: | 380/50/3 В/Гц/Ф |
| Потребляемая мощность: | 18.1 кВт |
| Ток: | 28 А |
| Рекуператор: | Есть |
| Размер канала: | 600х450 мм |
| Мощность электрического нагревателя: | 12 кВт |
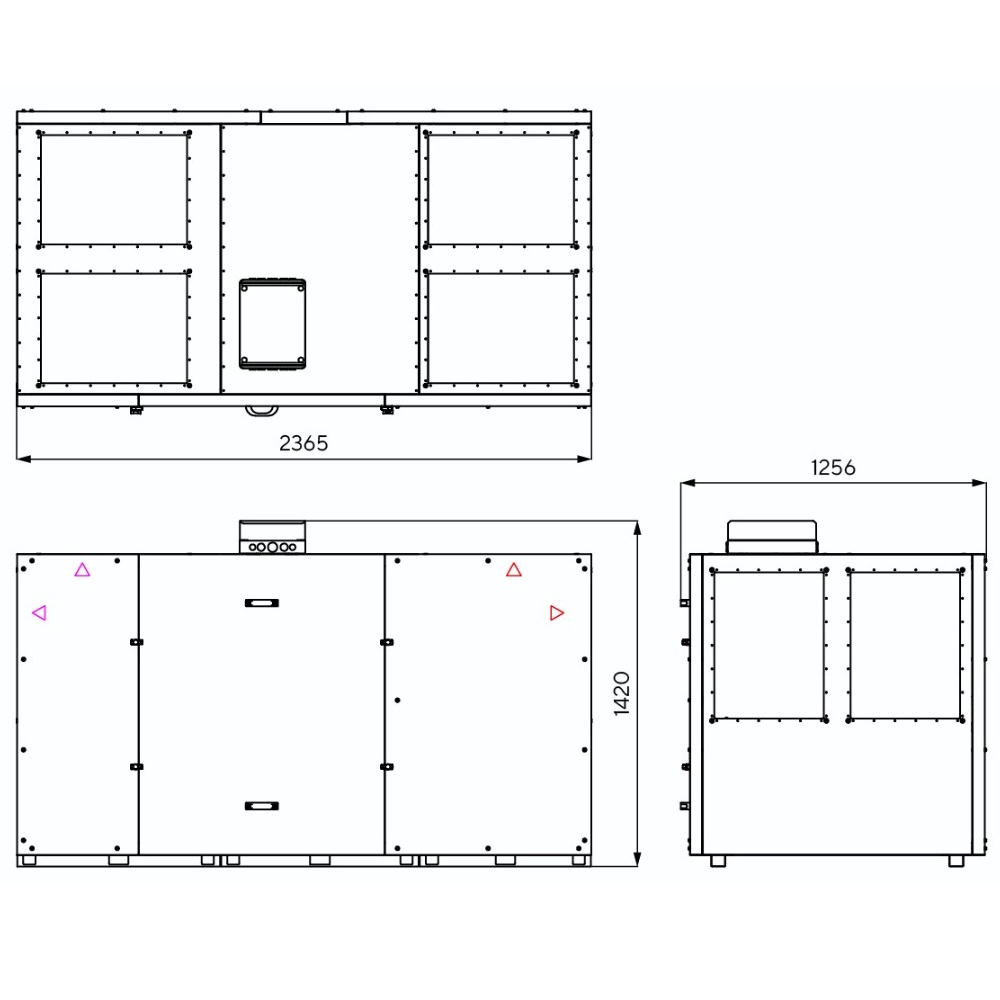
| Размеры: | 1256x2365x1420 мм |
| Вес: | 1055 кг |
| Ширина в упаковке: | 2465 мм |
| Глубина в упаковке: | 1356 мм |
| Высота в упаковке: | 1520 мм |
| Вес в упаковке: | 1058 кг |
чтобы снизить стоимость, улучшить характеристики или ускорить поставку.
Дополнительное оборудование
Для создания системы вентиляции на основе приточно-вытяжной установки Turkov ORBITA VX 5000 12E при необходимости подберем вспомогательные элементы: наружные решетки, воздушные клапаны, электроприводы, шумоглушители, дополнительные вентиляторы подпора воздуха, внутренние воздухо-распределительные устройства и диффузоры, воздуховоды необходимого диаметра, канальные нагреватели и охладители, секции фильтрации и обеззараживания, модули увлажнения и осушения воздуха, пульт управления и щит автоматики. В наличии большой ассортимент комплектующих для вентиляционных установок российских и зарубежных производителей. Подбор осуществляют сертифицированные инженеры — залог долговечной работы всех компонентов.Отзывов пока нет.
Отправьте запрос, и мы предложим Вам наши лучшие условия!
условия пользовательского соглашения


