Turkov ORBITA VX 3000 9E
- персональный менеджер решает все вопросы
- грамотные документы
- возмещение НДС 22%
- участвуем в тендерах / торгах
Компактная приточно-вытяжная установка Turkov ORBITA VX 3000 9E рассчитана на обслуживание крупных помещений и сочетает рекуперацию тепла с сохранением влаги. Модель работает с производительностью до 3000 м3/ч, а сорбционный роторный рекуператор позволяет запускать систему без преднагрева при уличной температуре до -32 °C.
Что дает рекуперация в повседневной работе
Установка не просто подает и удаляет воздух, а использует тепло вытяжного потока повторно. Это помогает снизить теплопотери, а КПД возврата тепла достигает 76%. Отсутствие конденсата упрощает эксплуатацию: не нужна дренажная система. Для объекта, где важно держать стабильный воздухообмен, это заметно уменьшает лишние сервисные задачи.
Сильные стороны и оснащение
- электрический нагреватель 9 кВт поддерживает приточный воздух в холодный сезон;
- помещения площадью до 1000 м2 можно обслуживать одной установкой;
- моноблочное исполнение с возможностью левого или правого монтажа упрощает привязку к планировке;
- автоматика TURKOV, пульт с сенсорным дисплеем и Wi-Fi-модуль входят в комплект;
- поддерживается управление через мобильное приложение, Яндекс Алису и Яндекс Станцию;
- функция фрикулинга помогает использовать наружный воздух для охлаждения в подходящих условиях;
- допускается дисбаланс до 30%;
- в комплекте - 4 фильтра тонкой очистки F5, ЕС-вентиляторы, датчики температуры и влажности, монтажные рельсы и защита ротора.
Где применяют такую установку
ORBITA VX 3000 9E выбирают для офисов, кафе, ресторанов и производственных помещений, где нужно организовать приточно-вытяжную вентиляцию с автоматическим управлением и экономией тепла. Прямоугольный воздуховод 500х350 мм позволяет встроить систему в инженерную сеть объекта.
По спецзаказу доступны внешний жидкостный нагреватель, блок преднагрева и двойной нагреватель.
| Код товара: | 192824 |
| Серия: | ORBITA VX |
| Модель: | ORBITA VX 3000 9E |
| Альтернативная маркировка: | ORBITA VX 3000 E |
| Бренд: | Turkov |
| Страна бренда: | Россия |
| Страна производства: | Россия |
| Гарантия: | 1 год |
| Рекомендуем для: | для офиса / для производственных помещений |
| Особенность: | роторный рекуператор |
| Тип вентиляционной установки: | компактная приточно-вытяжная |
| Тип нагревателя: | электрический |
| Основное назначение: | офисы, кафе или рестораны, производства |
| Площадь: | 1000 м2 |
| Минимальный уровень шума: | 43 дБ |
| Максимальный уровень шума: | 62 дБ |
| Воздухообмен (максимальный): | 3000 м3/ч |
| Воздуховод: | прямоугольный |
| Wi-Fi / онлайн управление: | Есть |
| Голосовое управление: | Яндекс Алиса |
| Электропитание: | 380/50/3 В/Гц/Ф |
| Потребляемая мощность: | 11.3 кВт |
| Ток: | 18 А |
| Рекуператор: | Есть |
| Размер канала: | 500х350 мм |
| Мощность электрического нагревателя: | 9 кВт |
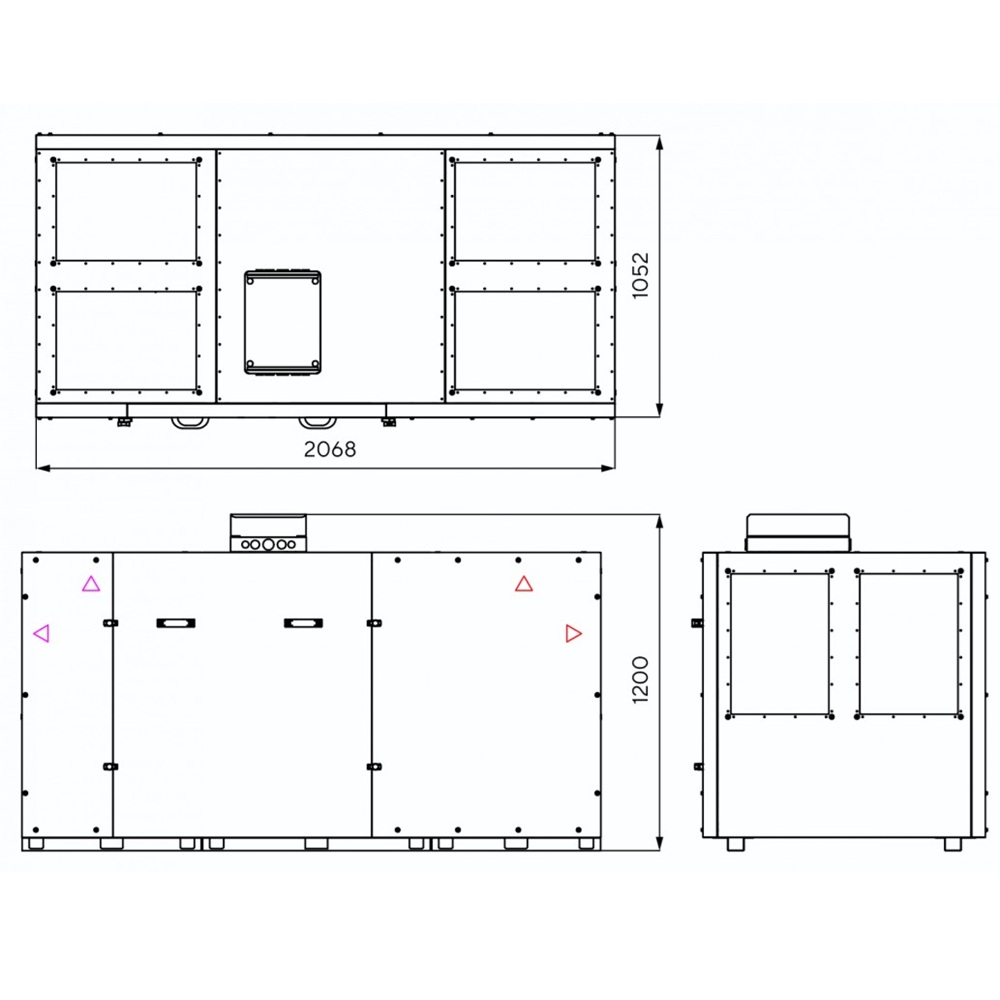
| Размеры: | 1052x2068x1200 мм |
| Вес: | 653 кг |
| Ширина в упаковке: | 2168 мм |
| Глубина в упаковке: | 1152 мм |
| Высота в упаковке: | 1300 мм |
| Вес в упаковке: | 656 кг |
чтобы снизить стоимость, улучшить характеристики или ускорить поставку.
Дополнительное оборудование
Для создания системы вентиляции на основе приточно-вытяжной установки Turkov ORBITA VX 3000 9E при необходимости подберем вспомогательные элементы: наружные решетки, воздушные клапаны, электроприводы, шумоглушители, дополнительные вентиляторы подпора воздуха, внутренние воздухо-распределительные устройства и диффузоры, воздуховоды необходимого диаметра, канальные нагреватели и охладители, секции фильтрации и обеззараживания, модули увлажнения и осушения воздуха, пульт управления и щит автоматики. В наличии большой ассортимент комплектующих для вентиляционных установок российских и зарубежных производителей. Подбор осуществляют сертифицированные инженеры — залог долговечной работы всех компонентов.Отзывов пока нет.
Отправьте запрос, и мы предложим Вам наши лучшие условия!
условия пользовательского соглашения


