Systemair TOPVEX FR11 HWH-L-CAV
- персональный менеджер решает все вопросы
- грамотные документы
- возмещение НДС 20%
- участвуем в тендерах / торгах
Подвесная компактная вентиляционная установка, серия TOPVEX
• Компактный по высоте• Различные способы монтажа
• Низкое энергопотребление
- энергоэффективные вентиялторы свободного напора с ЕС двигателями
• Эффективный роторный теплообменник
- не требует дренажа
• Встроенная, запрограммированная система автоматики
- Энергосберегающие функции
- Встроенный недельный таймер с планировщиком выходных дней
• Постоянное поддержание расхода или давления в воздуховодах
• Большие инспекционные двери для простого обслуживания
- Раздвижные двери, как дополнительная принадлежность
• Изготовлен из стальных листов в алюцинковым покрытием.
• Протестирован на заводе
Применение: Topvex FR03-11 - это серия энергоэффективных воздухообрабатывающих агрегатов для общественных, административных и жилых зданий. Агрегаты специально разработаны в соответствии с требованиями к энергоэффективности, поэтому агрегат оснащен высокоэффективным роторным теплообменником и низкое энергопотребление. Для упрощения монтажа и пуско-наладки агрегаты оснащены встроенной и сконфигурированной системой автоматики.
Уникальная конструкция со сдвоенным роторным теплообменником обеспечивает компактность агрегатов по высоте. Отсутствие необходимости отвода дренажа делает монтаж агрегатов более гибким.
Конструкция: Корпус агрегата состоит из двух листов стали с алюцинковым покрытием, AZ 185, толщиной 1 мм и внутреннего слоя звуко- и теплоизоляции - минеральной ваты толщиной 40 мм. Две большие инспекционные двери упрощают осмотр и обслуживание. Вентиляторы и роторный теплообменник легко извлекаются для обслуживания. Приточный и вытяжной фильтры устанавливаются на направляющих и для обеспечения оптимальной герметичности оснащены уплотнительными лентами.
Все электрические соединения находятся в единой клеммной коробке, расположенной с длинной стороны агрегата, что существенно упрощает сервисное обслуживание.
Агрегаты Topvex FR03-11 возможны в следующих исполнениях: с правосторонним и левосторонним обслуживанием, с электрическим или с водяным воздухонагревателями, системой автоматики стандартно с средствами связи Modbus и Exoline и через RS-485 и встроенным WEB сервером через TCP/IP; опционально LON.
Управление: Агрегаты Topvex FR03-11 поставляются с комплектом заводской автоматики, включая пульт управления с 10 м кабеля. Автоматика запрограммирована и протестирована на заводе и полностью готова к работе. Присоедините агрегат к системе воздуховодов, при необходимости подсоедините внешние компоненты, подключите кабель электропитания, настройте таймер, задайте скорость вентилятора (0-100%) - и все! Агрегат готов к эксплуатации.
Агрегаты Topvex FR03-11 имеют следующие энергосберегающие функции:
- Утилизация холода в теплое время года.
- Принудительно управляемый расход воздуха, с использованием датчиков CO2, влажности, движения либо других устройств с сухим контактом.
- Общий сигнал аварии, который дает возможность центрально отслеживать работу многих агрегатов.
Сертификаты: Сертификаты соответствия РФ, Украины
Код заказа:
- Модели: FR03, FR06, FR08 и FR11.
- Воздухонагреватель: EL (Электрический).
- Водяной воздухонагреватель: HWL (низкая мощность) и HWH (высокая мощность).
- Отсутствует. Пример: агрегат без нагревателя Topvex FR06-L-CAV 400V.
- Правосторонняя и левосторонняя модель: R (правый), L (левый). Определяется по стороне расположения приточного воздуха, если смотреть на агрегат со стороны обслуживания, когда он стоит на стороне, где расположена коммутационная панель. См. закладку Размеры
- Регулирование расхода воздуха: CAV (Постоянный расход воздуха).
VAV (Переменный расход воздуха = поддержание постоянного давления в каналах).
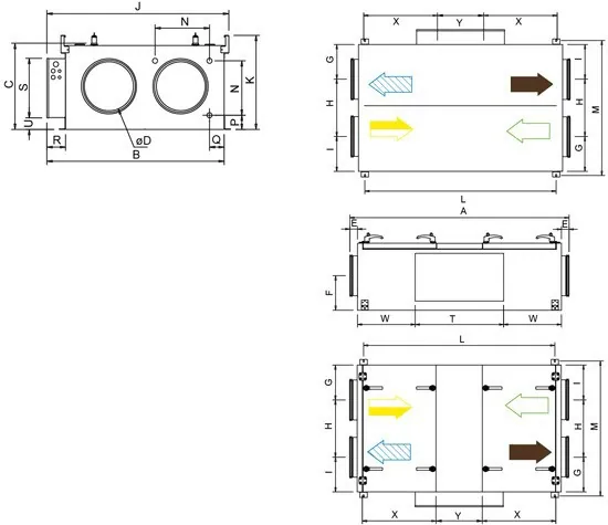
Размеры
|
* Высота при использовании Комплекта раздвижных дверей (дополнительная принадлежность)
|
Схема подключения
Электрическая схема
|
| Код товара: | 130957 |
| Серия: | Topvex |
| Модель: | TOPVEX FR11 HWH-L-CAV |
| Бренд: | Systemair |
| Страна производитель: | Россия |
| Гарантия: | 1 год |
| Рекомендуем для: | для вентиляции |
| Тип вентиляционной установки: | компактная приточно-вытяжная |
| Тип нагревателя: | водяной |
| Способ установки: | Подпотолочный |
| Воздухообмен (максимальный): | 5400 м3/ч |
| Воздухообмен (минимальный): | 1440 м3/ч |
| Воздуховод: | круглый |
| Электропитание: | 380/50/3 В/Гц/Ф |
| Диаметр: | 630 мм |
| Рекуператор: | Есть |
| Предохранитель: | 3 x 10 A |
| Мощность двигателя вентилятора: | 2.238 кВт |
| Размеры: | 840x1715x2440 мм |
| Вес: | 433 кг |
| Вес в упаковке: | 476 кг |
чтобы снизить стоимость, улучшить характеристики или ускорить поставку.
Дополнительное оборудование
Для создания системы вентиляции на основе приточно-вытяжной установки Systemair TOPVEX FR11 HWH-L-CAV при необходимости подберем вспомогательные элементы: наружные решетки, воздушные клапаны, электроприводы, шумоглушители, дополнительные вентиляторы подпора воздуха, внутренние воздухо-распределительные устройства и диффузоры, воздуховоды необходимого диаметра, канальные нагреватели и охладители, секции фильтрации и обеззараживания, модули увлажнения и осушения воздуха, пульт управления и щит автоматики. В наличии большой ассортимент комплектующих для вентиляционных установок российских и зарубежных производителей. Подбор осуществляют сертифицированные инженеры — залог долговечной работы всех компонентов.Отправьте запрос, и мы предложим Вам наши лучшие условия!
условия пользовательского соглашения


